Reverse sets and additional sets are also available.
By ordering 1 standard set of plans, they will be stamped "Not For Construction" because, by copyright law, it is illegal to make copies of construction sets. In order to construct the home, you must purchase more than 1 standard set.
PURCHASE POLICY
Because we have no control over the selection of your building professionals, we cannot be responsible for the advice you receive from them or for the methods they use. Please be sure that the plans you order meet your needs prior to purchase in that all sales are final, non-exchangeable, and non-refundable. Additional sets of the same plan may be ordered within a 60-day period at an added cost plus shipping, handling, and tax if applicable (please see price guide). Prices are subject to change without notice. Your business is important to us and we will process your order within 24 working hours.
REVERSE PLANS
To receive plans in reverse, you must request them when placing your order. Since lettering and dimensions appear backward on reverse plans (a mirror image), we suggest you order one reverse for siting and the rest as shown for construction. There is an additional charge of $55 for any amount of reverse (mirror) sets.
CUSTOM DESIGN and MODIFICATIONS
Custom design is our specialty and we will be glad to work with you in creating the home that is exactly what you wish. We will be happy to help our customers modify plans from our portfolios. With the help of our modification design team, you can move windows; enlarge rooms, change elevations, and combine elements from one William Poole plan to another. Ballpark estimates cannot be made prior to the consultation. The consultations may occur in our office in Wilmington, NC or over the telephone.
PLAN ORDERS
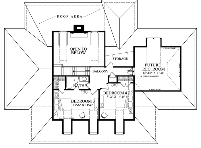
All plans and details are drawn at 1/4" scale or larger and include: designer's rendering of front elevation; foundation and dimensioned floor plans; electrical plans; section through house; all exterior elevations; selected interior elevations; door and window sizes; fireplace details; stair details; molding details; cabinet details; roof plan and exterior details. Most plans include alternate basement plans. Floor plans and elevations depicted are subject to minor changes. Floor plan dimensions on layout are approximate. Consult working drawings for actual dimensions and information. All total square footage figures represent heated square floor space only. They do not represent two-story vaulted spaces, garages, unfinished areas or basements.
REPRODUCIBLE VELLUMS
Reproducible Vellums are granted with a non-exclusive license to do the following:
- to modify the drawings for use in the construction of a single home;
- to make up to (12) copies of the plans for the construction of a single home
- to construct one and only one home based on the plans, either in the original form or as modified by you.
Title - You have purchased a license to use the plans. The title to and intellectual property rights in the plans shall remain in William E. Poole Designs, Inc. Use of the plans in a manner inconsistent with this agreement is a violation of U.S. Copyright Laws.
Modifications and warranties - Any modifications made to the vellums by parties other than William E. Poole Designs, Inc., voids any warranties express or implied including the warranties of fitness for a particular purpose and merchantability.
Limitations using the plans - You may NOT do any of the following with the Reproducible Vellum:
- use the plans in either original form or as a modified to construct more than one home;
- permit others to use or copy the plans;
- make more than twelve (12) copies of the plans (if additional plans are needed you must first obtain written consent of William E. Poole Designs, Inc.);
- sell, lend or otherwise transfer the plans to another.
Our plans are protected under federal copyright laws. Any reproduction or modification of the plans without the express written consent of William E. Poole Designs, Inc. is prohibited. Your purchase includes a license to use the purchased plans to construct one single-family residence. Reuse of the plans to construct more than one residence is expressly prohibited.
THANK YOU FOR YOUR INTEREST IN OUR DESIGNS AND SERVICES.
To order house plans, magazines or portfolios call our professionals at 910-251-8980.